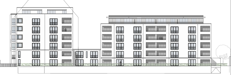
Der Gebäudekomplex umfasst insgesamt 73 Wohneinheiten in einer durchdachten Mischung aus Ein- und Zweizimmerapartments sowie Penthauswohnungen.
Egal welche Wohnungsgröße für Sie in Frage kommt, sie sind alle groß wenn es um Qualität und Komfort geht.
Für mehr Informationen zu einem Apartment wählen Sie es bitte über die untenstehende Fassade oder die Tabelle aus.
| Nummer | Type | Größe | Etage | Kaltmiete | Kaltmiete inkl. Einbauküche | Nebenkosten- vorauszahlung | Status | Frei ab |
|---|